Accueil
Rechercher
Je publie une annonce
Mes Annonces & Mon Profil
Contact
Dernières annonces
PONCEUSE TÔLE COFFRANTE ACS
Prix:
Je propose un prix !
n° 610453
J'envoie à un ami
Localisation:
69330
:
MEYZIEU
Rhone
Rhone Alpes
FRANCE
Je consulte la rubrique:
Coffrages Compas de levage Banches manuportables
Créer une alerte pour les nouveautés de la rubrique Coffrages Compas de levage Banches manuportables !
Je consulte les annonces:
ACS
Je consulte les annonces de l'annonceur:
INTEQUEDIS
Je contacte l'annonceur par email
Date de parution:
mardi 6 mai 2025
A vendre
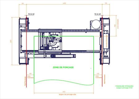
Référence: Ponceuse
Année: 2014
Heures: 200
Ponceuse Automatique pour Tôle de Banches de Coffrage - Marque ACS Entièrement Révisée 2022 Vente dans le cadre du renouvellement et amélioration des process INTEQUEDIS
Contact par mail ou par tél: Foucaud Laurent - 0472830173 - 0676201545
Qui sommes-nous
Conditions Générales d'Utilisation
Gestion des cookies